Een bezichtiging inplannen?
Contacteer de makelaar via wim@altro-vastgoed.be of +32 473 70 40 71
Beschrijving

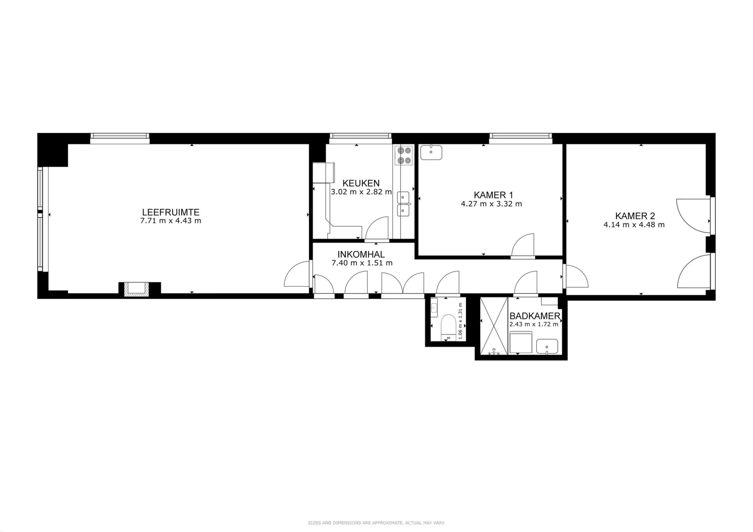
Op een gegeerde ligging in de wijk Kristus-Koning, langs de Leopold I-laan te Brugge, bevindt zich dit lichtrijk hoekappartement met een doordachte indeling en aangename ruimtes. Dankzij de hoekligging geniet u hier van extra lichtinval en een open gevoel.

Via de inkomhal bereikt u de ruime leefruimte, ideaal voor een gezellige zithoek en eetplaats. Aansluitend bevindt zich de afzonderlijke keuken. Verder beschikt het appartement over twee volwaardige slaapkamers (ca. 14 m² en 18 m²), een badkamer met douche en wastafel, een apart toilet en praktische bergmogelijkheden.

Het appartement heeft een bewoonbare oppervlakte van ca. 100 m² en beschikt over een EPC-label B (185 kWh/m² jaar), wat zorgt voor een gunstige energieprestatie . Bovendien is het appartement asbestveilig, wat extra gemoedsrust biedt .

Gelegen in een residentiële buurt, op wandelafstand van winkels, scholen en het centrum van Brugge, combineert deze eigendom comfort met een uitstekende bereikbaarheid.

Exttra ruime garage optioneel bij te kopen à € 35.000, de private berging inbegrepen in de aankoopprijs.

Een interessante opportuniteit voor zowel eigen bewoning als investering.

Interesse?

Wim Gevaert

Heb je interesse in deze woning?

Neem contact met ons op voor een bezichtiging of meer informatie.

Wim Gevaert

Je bent op zoek naar jouw droomwoning?

Op zoek naar je droomwoning, een kantoorruimte of een bouwgrond op een toplocatie? Dit is niet altijd even makkelijk.
Daarom gaat Altro voor jou aan de slag. Deel je wensen en voorkeuren, en wij zoeken gericht mee naar vastgoed dat écht bij je past.