Een bezichtiging inplannen?
Contacteer de makelaar via wim@altro-vastgoed.be of +32 473 70 40 71
Beschrijving

In een rustige en vlot bereikbare omgeving te Oostkamp (Moerbrugge) bevindt zich dit instapklare duplexappartement zonder syndic, waar u geniet van maximale privacy en geen gemeenschappelijke kosten.

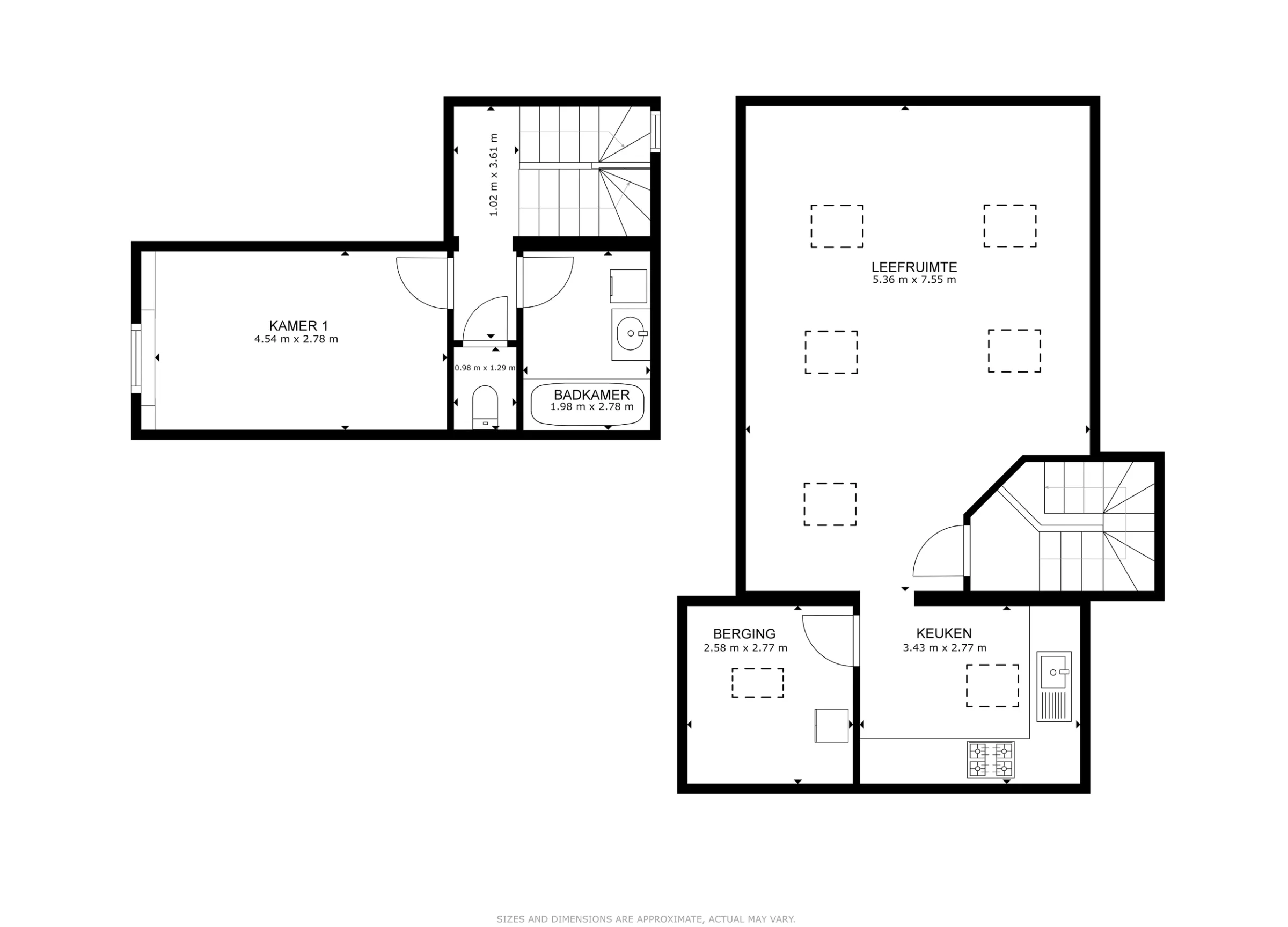
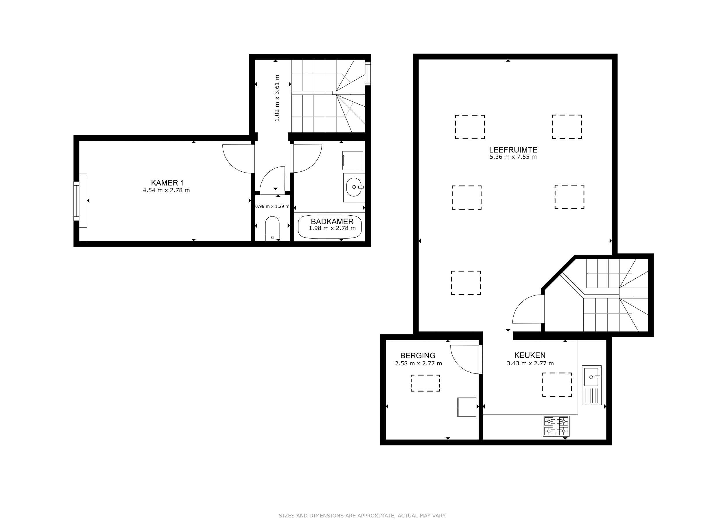
Via uw private inkom op het gelijkvloers komt u binnen in de inkomhal met praktische berging en trap naar de verdieping. Op de eerste verdieping vindt u een ruime slaapkamer, een onderhouden badkamer met ligbad en wastafel, evenals een apart toilet.

De tweede verdieping vormt het hart van het appartement: een opvallend ruime en lichtrijke leefruimte (ca. 40 m²) met aansluitend een recent vernieuwde keuken en een extra berging voor technieken en stockage. De open indeling en de dakstructuur zorgen hier voor een aangenaam ruimtegevoel.

De voorbije jaren werd het appartement grondig aangepakt: elektriciteit werd vernieuwd en is conform , er werd een nieuwe condensatieketel geplaatst, de keuken werd vernieuwd (Dovy) en alle veluxramen (8 stuks) werden vervangen met aandacht voor comfort en isolatie.

Met een EPC-label C (239 kWh/m² jaar) biedt dit appartement een degelijke energieprestatie .

De ligging combineert rust met een uitstekende bereikbaarheid: station, winkels, scholen en de E40 bevinden zich op korte afstand.

Een ideale opportuniteit voor starters of wie zorgeloos wil wonen zonder syndickosten.
Interesse?

Wim Gevaert

Heb je interesse in deze woning?

Neem contact met ons op voor een bezichtiging of meer informatie.

Wim Gevaert

Je bent op zoek naar jouw droomwoning?

Op zoek naar je droomwoning, een kantoorruimte of een bouwgrond op een toplocatie? Dit is niet altijd even makkelijk.
Daarom gaat Altro voor jou aan de slag. Deel je wensen en voorkeuren, en wij zoeken gericht mee naar vastgoed dat écht bij je past.