Een bezichtiging inplannen?
Contacteer de makelaar via ellen@altro-vastgoed.be of +32 475 40 07 70
Beschrijving

Altro Vastgoed verkoopt : Eerste bezoekdag vrijdag 24 april - enkel op afspraak !

Ontdek deze unieke kans in het hart van Gent Zuid. Een instapklare belle-étage die alles biedt wat een studerend kind of starter nodig heeft: ruimte, comfort, een eigen buitenruimte en de zeldzame luxe van een inpandige garage.

Een zorgeloze investering op een toplocatie

Gelegen in een zijstraat van de as Brabantdam - Vlaanderenstraat, bevindt deze woning zich op een steenworp van de Gentse universiteiten, hogescholen en het bruisende stadsleven.

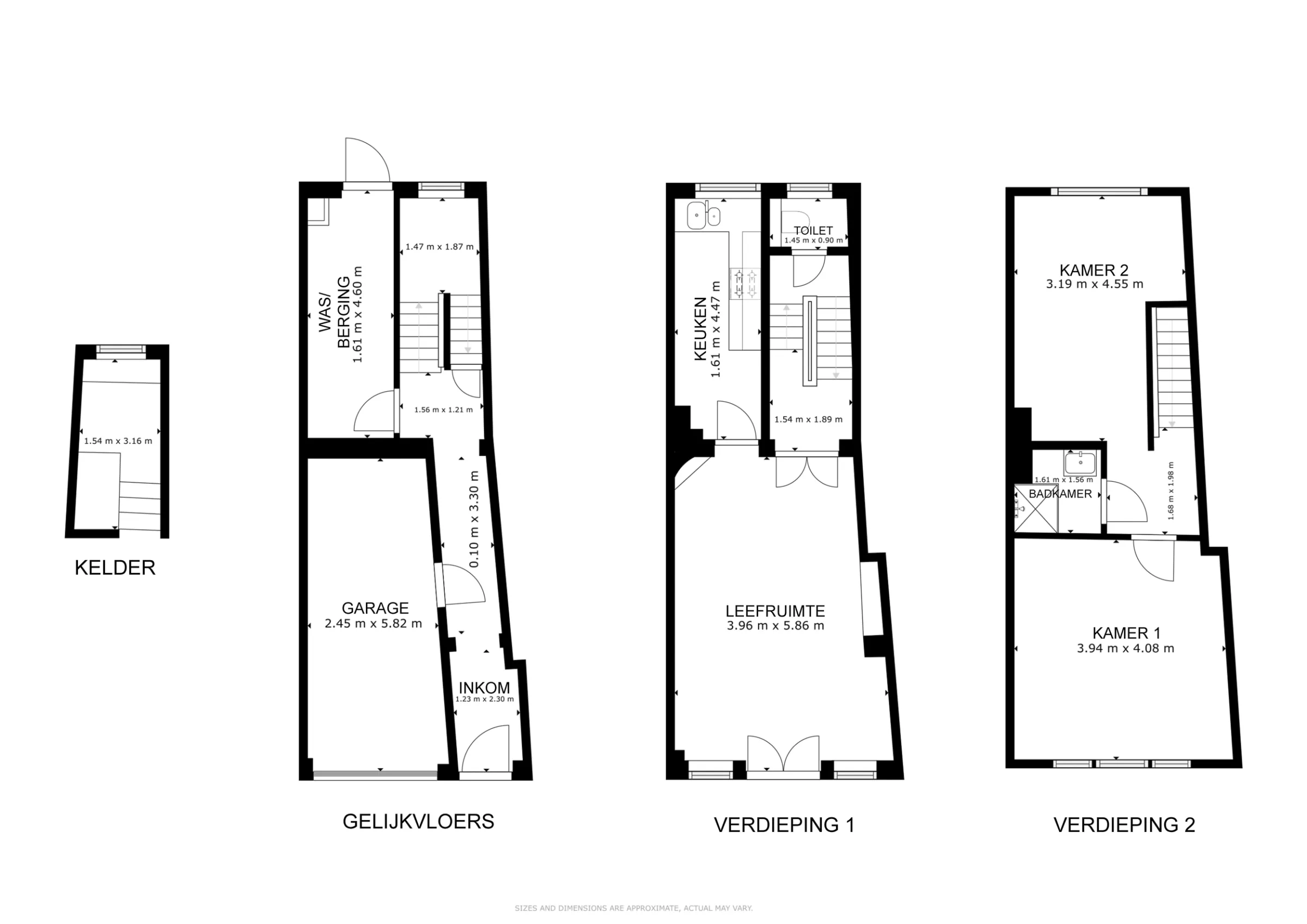
Indeling van de woning:

  • Gelijkvloers: ruime garage met automatische poort, praktische kelder voor extra opslag en toegang tot de stadstuin.

  • Eerste verdieping: Een lichtrijke leefruimte met grote raampartijen en een aansluitende, functionele keuken. De ideale plek om rustig te studeren of gasten te ontvangen.

  • Tweede verdieping: twee volwaardige, ruime slaapkamers en een verzorgde douchekamer.

Belangrijke kenmerken:

  • Locatie: Zijstraat Brabantdam - Vlaanderenstraat, Gent Zuid

  • Type: Belle-étage

  • 2 volwaardige slaapkamers 

  • EPC: 283 kWh/(m² jaar) - Label C (Geen renovatieverplichting)

  • Elektriciteit: Conform

  • Extra: Garage + Stadstuin + Kelder

Interesse in een bezichtiging?

Neem vandaag nog contact op voor meer informatie of een bezoek ter plaatse.

📞 Contacteer Ellen : 0475.400.770 - ellen@altro-vastgoed.be

Ellen De Roo

Heb je interesse in deze woning?

Neem contact met ons op voor een bezichtiging of meer informatie.

Ellen De Roo

Je bent op zoek naar jouw droomwoning?

Op zoek naar je droomwoning, een kantoorruimte of een bouwgrond op een toplocatie? Dit is niet altijd even makkelijk.
Daarom gaat Altro voor jou aan de slag. Deel je wensen en voorkeuren, en wij zoeken gericht mee naar vastgoed dat écht bij je past.

Contact opnemen

Heb je een vraag?
Neem contact met ons op

Inschrijven nieuwsbrief

Vastgoedmakelaar-bemiddelaar, erkend in België door het BIV onder nummer 503.213. AVG Properties bv (ondernemingsnummer BE 0680.782.523) is onderworpen aan de deontologische code van het Beroepsinstituut van Vastgoedmakelaars (BIV). Opererend onder de naam Altro Vastgoed, gevestigd aan Heidestraat 71a, 9070 Heusden, bereikbaar via +32 78 35 37 01 of info@altro-vastgoed.be.

Gedekt door een beroepsaansprakelijkheidsverzekering en financiële borgstelling via NV AXA Belgium, polisnummer 730.390.160. Toezichthoudende autoriteit: Beroepsinstituut van Vastgoedmakelaars (BIV), Luxemburgstraat 16B, 1000 Brussel, bereikbaar via +32 2 505 38 50 of info@biv.be.

Lanceringsevent Huyze Verde

Kom langs op het event
23 april van 18.00u tot 21.00u

.