Een bezichtiging inplannen?
Contacteer de makelaar via wim@altro-vastgoed.be of +32473704071
Beschrijving

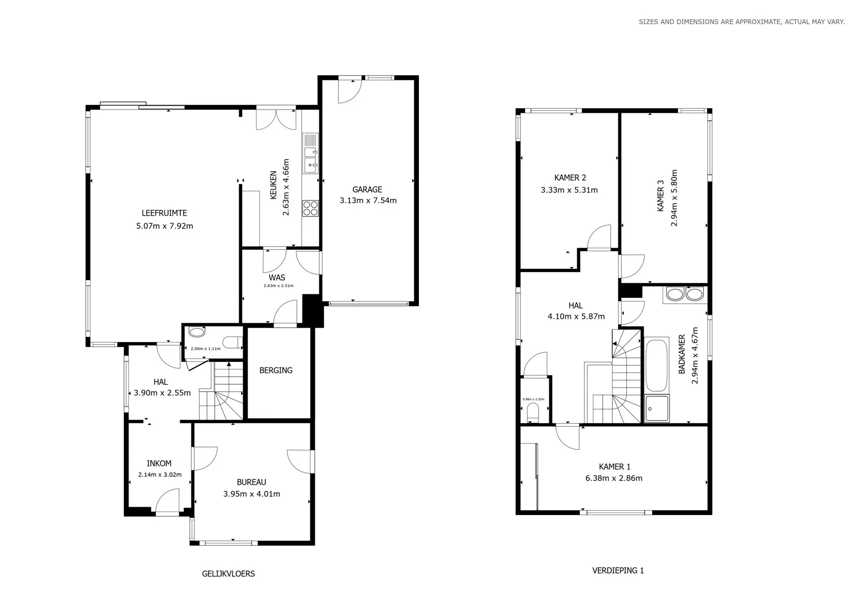
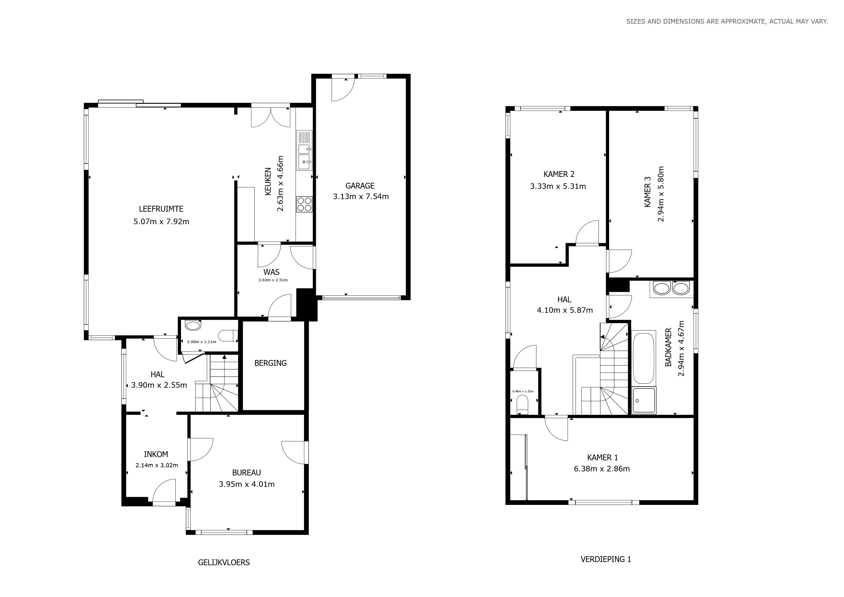
Bent u op zoek naar een recente woning waar ruimte, comfort en energiezuinig wonen samenkomen? Dan kan deze open bebouwing in Ruddervoorde (Oostkamp) perfect aansluiten bij wat u zoekt. Gebouwd in 2012 en gelegen op een perceel van 450 m², biedt deze woning een bewoonbare oppervlakte van maar liefst 251 m² en een doordachte indeling die meteen aanvoelt als thuiskomen.

Via de inkomhal bereikt u de lichtrijke leefruimte met een aangename combinatie van zit- en eetplaats, die naadloos aansluit op de keuken en uitkijkt op de tuin en het terras. Op het gelijkvloers bevindt zich bovendien een extra kamer die vandaag dienstdoet als bureau, maar perfect kan ingericht worden als slaapkamer, ideaal voor wie gelijkvloers wil wonen of een zelfstandige activiteit overweegt.

Op de verdieping vindt u drie volwaardige slaapkamers en een ruime badkamer met dubbele wastafel, ligbad en douche. De woning is uitgerust met rolluiken, conforme elektriciteit en een gunstig EPC-label B (132 kWh/m²), wat zorgt voor een comfortabele en energiezuinige woonervaring.

De tuin met terras en de aanwezigheid van een garage maken het geheel compleet.

Bent u op zoek naar een woning waar u zonder zorgen kan intrekken en die tegelijk voldoende ruimte biedt voor uw gezin of plannen?

Wim Gevaert

Heb je interesse in deze woning?

Neem contact met ons op voor een bezichtiging of meer informatie.

Wim Gevaert

Je bent op zoek naar jouw droomwoning?

Op zoek naar je droomwoning, een kantoorruimte of een bouwgrond op een toplocatie? Dit is niet altijd even makkelijk.
Daarom gaat Altro voor jou aan de slag. Deel je wensen en voorkeuren, en wij zoeken gericht mee naar vastgoed dat écht bij je past.

Contact opnemen

Heb je een vraag?
Neem contact met ons op

Inschrijven nieuwsbrief

Vastgoedmakelaar-bemiddelaar, erkend in België door het BIV onder nummer 503.213. AVG Properties bv (ondernemingsnummer BE 0680.782.523) is onderworpen aan de deontologische code van het Beroepsinstituut van Vastgoedmakelaars (BIV). Opererend onder de naam Altro Vastgoed, gevestigd aan Heidestraat 71a, 9070 Heusden, bereikbaar via +32 78 35 37 01 of info@altro-vastgoed.be.

Gedekt door een beroepsaansprakelijkheidsverzekering en financiële borgstelling via NV AXA Belgium, polisnummer 730.390.160. Toezichthoudende autoriteit: Beroepsinstituut van Vastgoedmakelaars (BIV), Luxemburgstraat 16B, 1000 Brussel, bereikbaar via +32 2 505 38 50 of info@biv.be.

Beleef Park aan de Stroom in Hemiksem

Kom langs op het verkoopkantoor op de werf
4 april van 10.00u tot 14.00u

.