Een bezichtiging inplannen?
Contacteer de makelaar via leen@altro-vastgoed.be of +32 478 69 84 34
Beschrijving

Bezoekdag (op afspraak)

Op zoek naar een instapklaar gelijkvloers appartement waar licht en comfort samenkomen? Dit pareltje in Wakken (Dentergem) is tot in de puntjes afgewerkt en biedt een unieke kans voor wie onmiddellijk wil genieten of slim wil investeren.

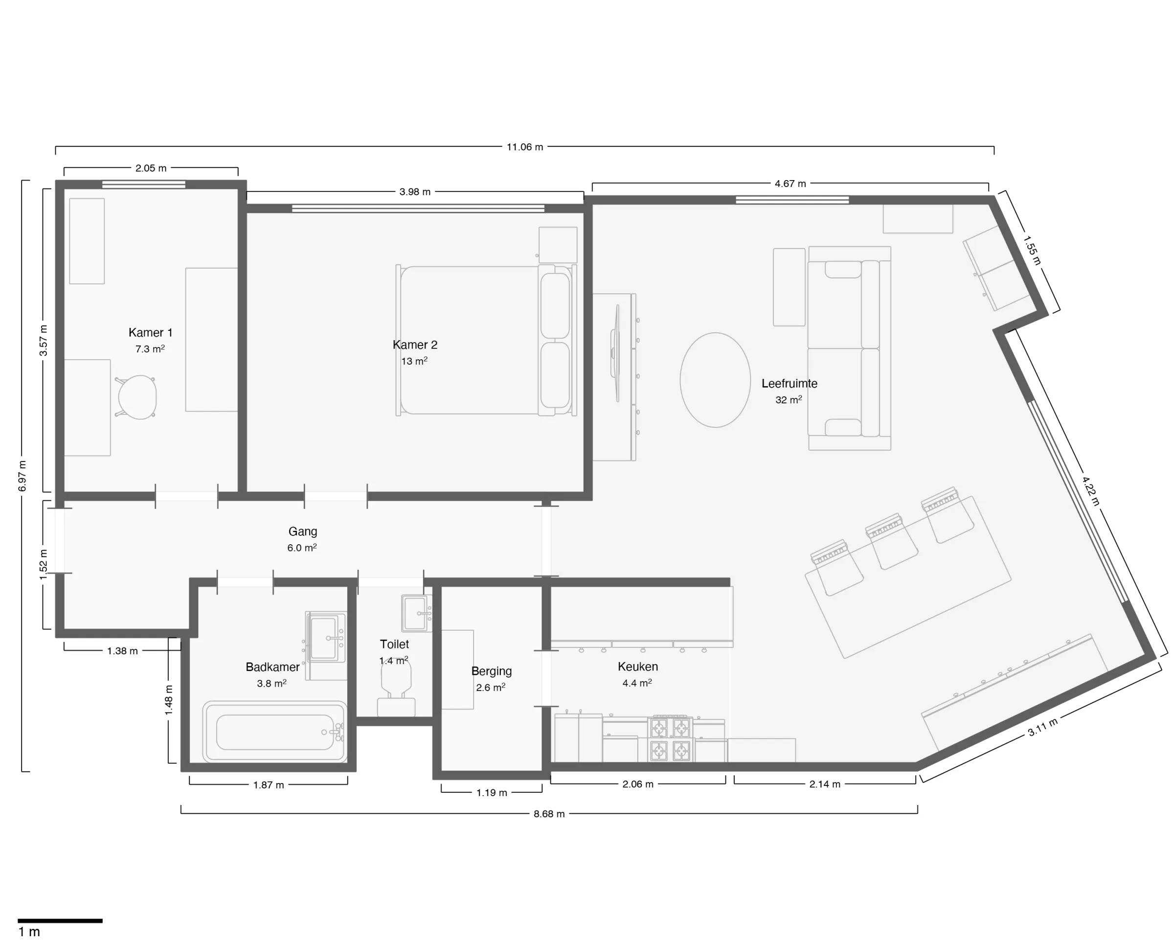
Lichtrijk wonen met zicht op groen: De ruime leefruimte is het kloppend hart van het appartement. Dankzij de grote raampartijen baadt de woning in het natuurlijke licht. Via de living stap je zo het gezellige terras op, waar je geniet van een prachtig uitzicht over de achtergelegen groene velden. De moderne open keuken met praktische berging sluit naadloos aan op de zithoek, wat zorgt voor een optimaal ruimtegevoel.

Comfort en kwaliteit: Het appartement beschikt over een grote en een kleinere slaapkamer, een apart toilet en een netjes afgewerkte badkamer. Alles is met oog voor detail onderhouden. Een grote troef? De aanwezigheid van een eigen autostaanplaats. Bovendien kan het appartement inclusief meubels worden aangekocht – een ideale opportuniteit voor starters of investeerders die op zoek zijn naar een zorgeloze start!

Toplocatie: Gelegen op een fijne locatie met lokale winkels, scholen en gezellige restaurantjes op wandelafstand. Hier combineer je het dorpsgevoel met modern wooncomfort.

Mis deze unieke kans op een volledig instapklaar gelijkvloers appartement niet!

Klaar om dit vastgoed te ontdekken? Contacteer uw vastgoedmakelaar Leen op 0478/69.84.34 of mail naar Leen@altro-vastgoed.be.

Leen De Clercq

Heb je interesse in deze woning?

Neem contact met ons op voor een bezichtiging of meer informatie.

Leen De Clercq

Je bent op zoek naar jouw droomwoning?

Op zoek naar je droomwoning, een kantoorruimte of een bouwgrond op een toplocatie? Dit is niet altijd even makkelijk.
Daarom gaat Altro voor jou aan de slag. Deel je wensen en voorkeuren, en wij zoeken gericht mee naar vastgoed dat écht bij je past.

Contact opnemen

Heb je een vraag?
Neem contact met ons op

Inschrijven nieuwsbrief

Vastgoedmakelaar-bemiddelaar, erkend in België door het BIV onder nummer 503.213. AVG Properties bv (ondernemingsnummer BE 0680.782.523) is onderworpen aan de deontologische code van het Beroepsinstituut van Vastgoedmakelaars (BIV). Opererend onder de naam Altro Vastgoed, gevestigd aan Heidestraat 71a, 9070 Heusden, bereikbaar via +32 78 35 37 01 of info@altro-vastgoed.be.

Gedekt door een beroepsaansprakelijkheidsverzekering en financiële borgstelling via NV AXA Belgium, polisnummer 730.390.160. Toezichthoudende autoriteit: Beroepsinstituut van Vastgoedmakelaars (BIV), Luxemburgstraat 16B, 1000 Brussel, bereikbaar via +32 2 505 38 50 of info@biv.be.

Lanceringsevent Huyze Verde

Kom langs op het event
23 april van 18.00u tot 21.00u

.