Een bezichtiging inplannen?
Contacteer de makelaar via wim@altro-vastgoed.be of +32 473 70 40 71
Beschrijving

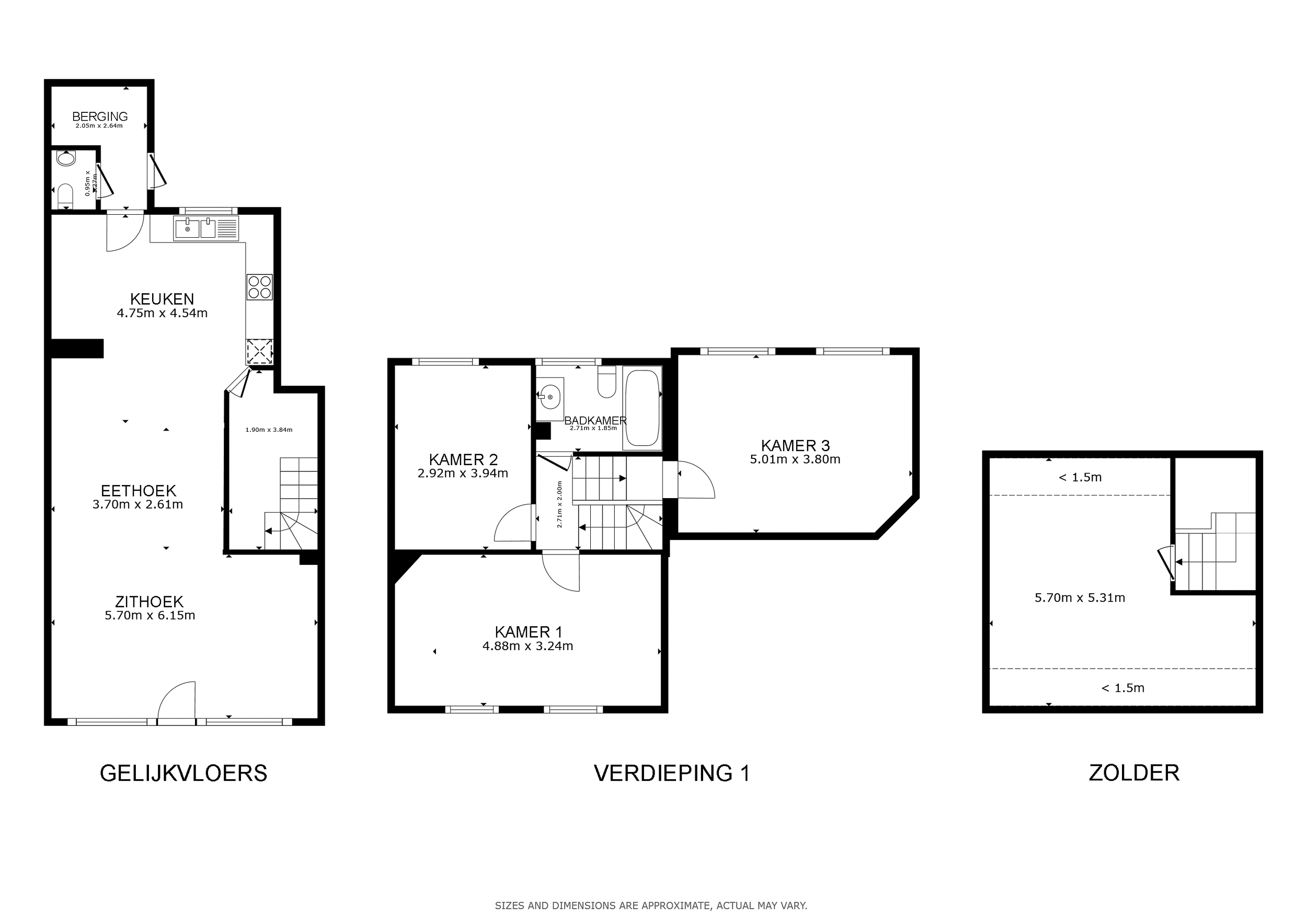
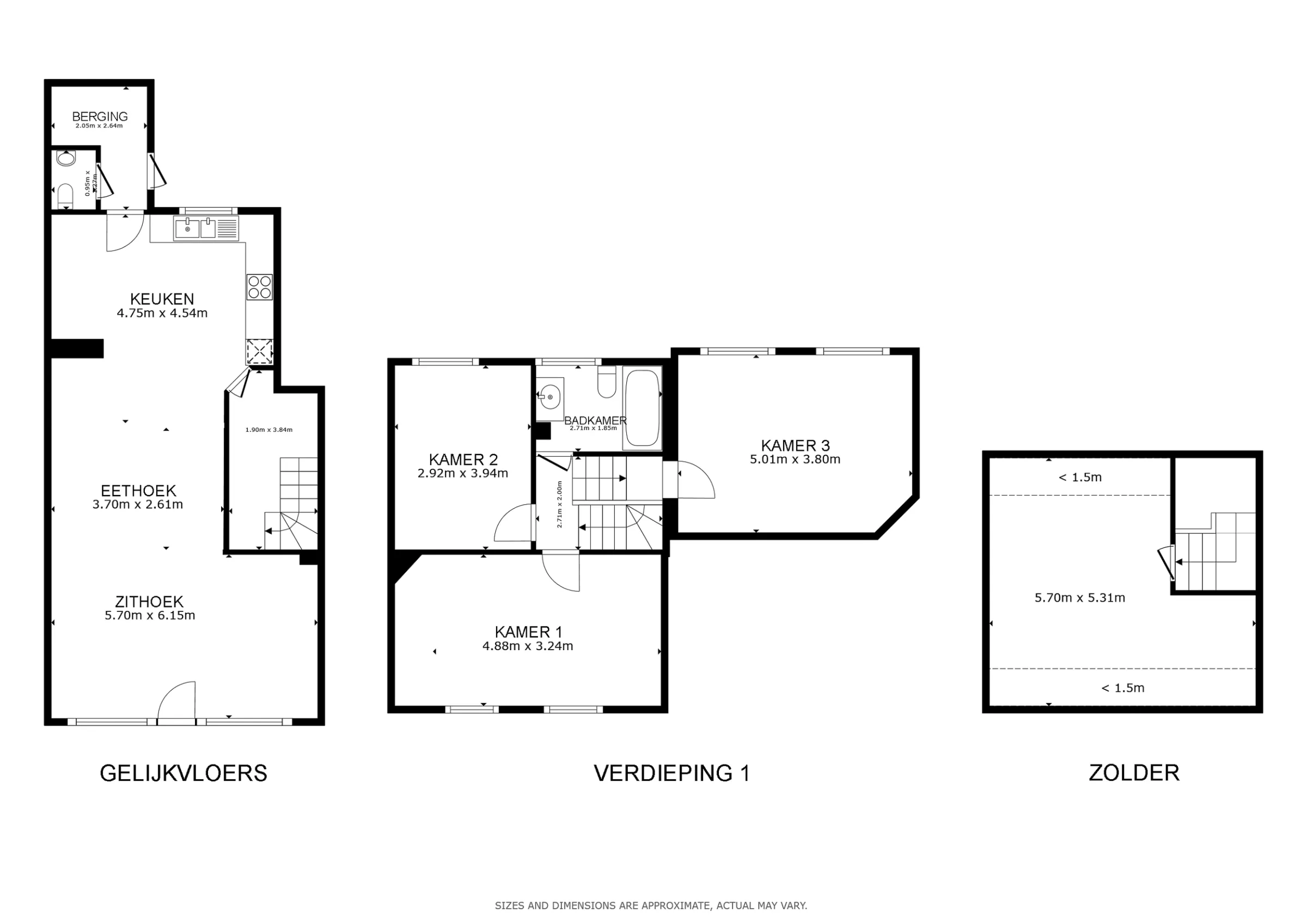
Op zoek naar een woning met karakter én potentieel op een vlot bereikbare ligging in Brugge? Deze halfopen bebouwing langs de Blankenbergse Steenweg biedt een mooie opportuniteit voor wie wil opfrissen naar eigen smaak. Deze woning, gebouwd tussen 1919 en 1930, maakt deel uit van de Sint-Pieters-Tuinwijk en is gelegen op een perceel van ca. 156 m², met een logische en ruime indeling.

Op het gelijkvloers komt u binnen via de inkomhal met trap, die uitgeeft op een lichtrijke leefruimte met zit- en eethoek en aansluitende keuken. Achteraan bevinden zich een praktische berging en een afzonderlijk toilet. Op de eerste verdieping zijn er drie volwaardige slaapkamers en een badkamer, bereikbaar via de nachthal. De tweede verdieping, toegankelijk via een vaste trap, biedt bijkomende mogelijkheden voor uitbreiding of extra kamers.

De woning beschikt over een conforme elektrische installatie tot 2051 en heeft een EPC-label D (393 kWh/m²), wat ruimte laat voor energetische optimalisatie . Het asbestattest vermeldt twee materialen, wat typisch is voor dit type woning en beheersbaar is binnen een renovatietraject .

Kortom, een interessante woning voor wie op zoek is naar een solide basis met tal van mogelijkheden, op een strategische locatie in Brugge.

Interesse?

Wim Gevaert

Heb je interesse in deze woning?

Neem contact met ons op voor een bezichtiging of meer informatie.

Wim Gevaert

Je bent op zoek naar jouw droomwoning?

Op zoek naar je droomwoning, een kantoorruimte of een bouwgrond op een toplocatie? Dit is niet altijd even makkelijk.
Daarom gaat Altro voor jou aan de slag. Deel je wensen en voorkeuren, en wij zoeken gericht mee naar vastgoed dat écht bij je past.